Продается дом, 75.8 кв.м., /1 эт
Обзор№ - 294
| Стоимость | 4 200 000 |
|---|---|
| Комнат в доме | 3 |
| Тип комнат | раздельные |
| Право собственности | Посредник |
| Ремонт | Без отделки |
| Тип строения | Дом |
| Площадь, кв.м. | 75.8 |
| Площадь участка, сот | 8 |
| Этажность | 1 |
| Материал стен | Кирпич |
Адрес
| Населенный пункт | село Конь |
|---|
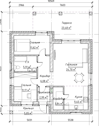
Продаем дом на этапе строительства в коттеджном посёлке "Сосновый бор".
Кирпичный дом площадью 75,76м² плюс терасса - 23,48 м².
Кухня-гостинная - 34,15 м²,
Две спальни - 11,62+11,17 м².
Дом строился с соблюдением всех технологий.
Бóльшая часть работ уже проведена.
Фундамент свайно-ростверковый.
Газ, электричество подведены до дома.
Своя скважина .
Проект дома , геология и разрешение на строительство на руках.
Дом расположен в непосредственной близости от леса.
Местоположение указано точное.
Приезжайте на просмотр!

































